截图
简介
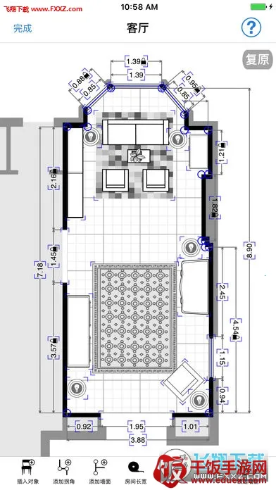
MagicPlan是一款基于AR技术的装修绘图工具,可快速生成精确平面图与3D模型。支持多格式导出,有结构化报告与成本估算功能,测量精准,还具备三维渲染预览、材料用量估算及云端协作等特色,操作简单易上手。
magicplan使用教程
MagicPlan是一款超棒的装修绘图工具。它以AR技术为核心,能快速生成精确平面图与3D模型。打开软件,首次使用会有视频教你校准手机和常规用法。新建房间有多种方式,比如用相机捕捉,适合毛坯房。选择楼层和所在房间后,按语音提示操作就行,像捕捉时右键可添加房门。每个房间能储存,所有房间组合后软件会自动算墙壁宽度。它功能强大,支持多格式导出,能创建结构化报告,还能自动计算成本估算。有了它,哪怕没有专业知识,也能轻松画出专业平面图,提前规划房间布局、模拟家具摆放效果,非常方便实用,无论是设计师、经纪人还是普通装修业主都适用,强烈推荐大家试试!

magicplantdefence
如果你正在寻找一款强大的装修绘图工具,那magicplan绝对值得拥有!它以AR技术为核心,能快速生成精确平面图与3D模型。通过手机摄像头扫描房间,自动识别尺寸与布局,生成专业平面图,还支持PDF、JPG、DXF等格式导出。其功能超丰富,有AR扫描绘图、多格式导出、结构化报告、成本估算等。特色也十分突出,精准AR技术测量精度高,大户型测绘效率提升显著;能提供逼真3D渲染预览;可智能计算建材用量辅助成本控制;支持云端协作方便团队作业。使用教程简单易懂,新建房间有多种选择方式,操作中有语音提醒。哪怕你没有专业知识,也能轻松画出专业平面图,自用免费就很实用,真的是装修绘图的得力助手!

magicplan核心特色
magicplan以AR技术为核心,具有诸多特色。精准AR技术测量精度高,大户型测绘效率大幅提升。能提供逼真的三维渲染预览,实时呈现装修设计效果。可智能计算建材用量,辅助成本控制。支持云端协作,方便团队协同作业。操作时,通过手机摄像头非接触式测量,自动生成平面图,还能多格式导出。添加照片、360图像及备注可生成详细报告,自动计算工程价格生成预算报告,助力高效完成设计规划与预算。

magicplan优势
Magicplan具有诸多优势:
1. 精准测量:利用AR技术,测量精度高达2,大户型测绘效率能提升70%,可快速准确获取房间尺寸与布局。
2. 多格式导出:支持PDF、JPG、DXF等多种格式输出,能兼容不同专业设计需求,方便与他人共享协作。
3. 成本估算:自动计算工程价格,生成装修预算报告,助力设计师、经纪人及装修业主高效完成预算规划。
4. 操作简便:即使没有专业知识,也能轻松上手,按照语音提示就能完成平面图绘制,还可自由发挥进行设计修改。

magicplan怎么样
MagicPlan是一款备受关注的软件。它以AR技术为核心,能为建筑设计及房地产等行业提供高效测绘与设计工具。其优势显著,可快速生成精确平面图与3D模型,通过摄像头扫描房间就能自动识别空间尺寸与布局,还支持多格式导出。
使用它时,操作相对简便。首次打开有校准手机和常规使用方法的视频,之后新建房间有多种选择方式,如捕捉、画图、导入等。在绘制过程中,会有语音提醒,方便用户一步步完成操作。每个房间绘制好可储存,所有房间组合后软件能自动计算墙壁宽度。
总的来说,MagicPlan对于设计师、经纪人及装修用户等是个不错的选择,即使没有专业知识也能轻松上手画出专业平面图,免费版自用也足够,是一款值得尝试的软件。